GOLDEN TRIANGLE

Neighborhood-led Redevelopment

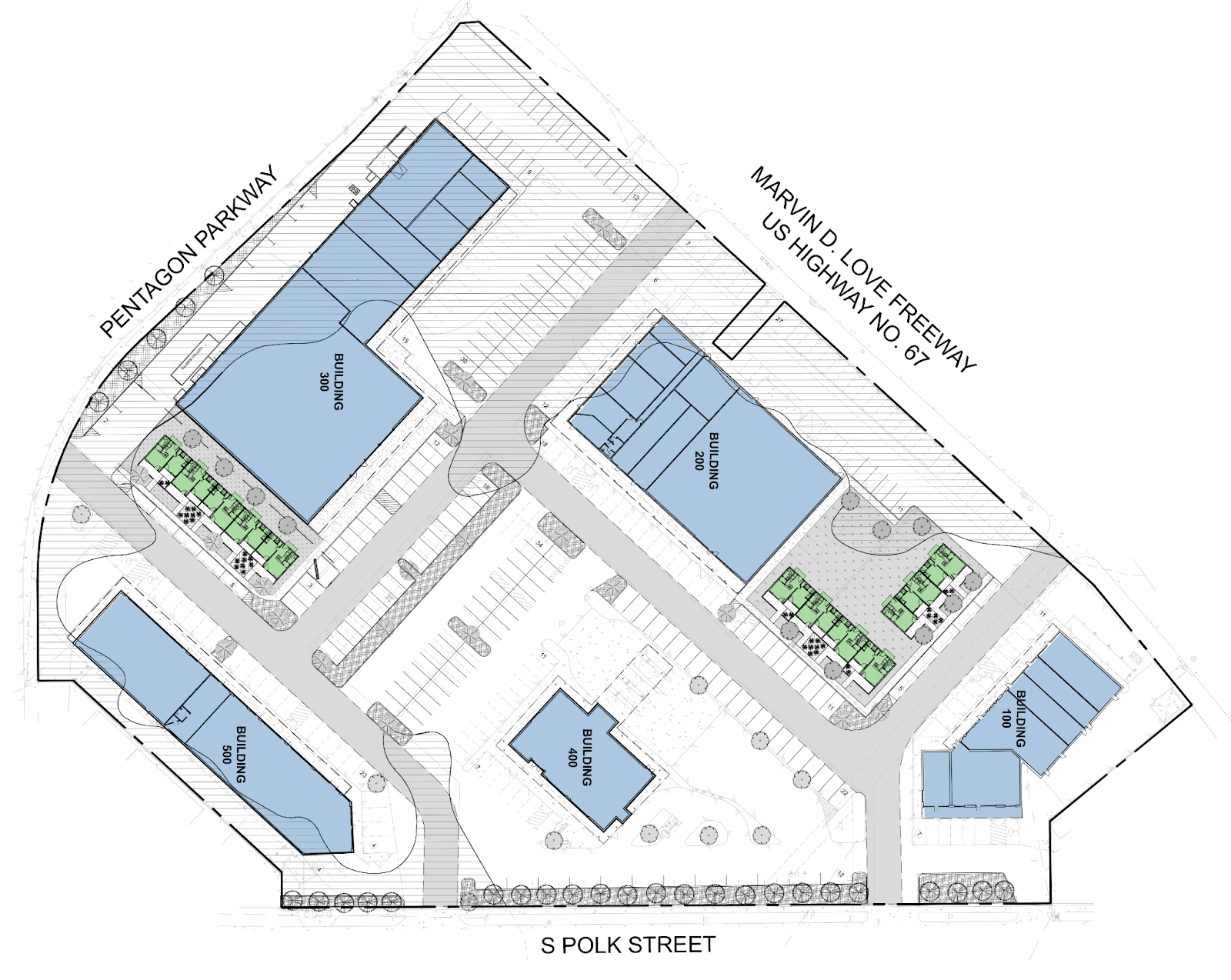
Purchased as part of a multi-building acquisition, this half-vacant and neglected strip mall was deteriorating rapidly. Monte Anderson focused on fixing up, leasing up, and repairing the property. He focused on creating opportunities for restaurant entrepreneurs, which created wealth within the neighborhood while boosting the overall profitability of the mall.

Aligning with Neighborhood Evolution’s values of incremental urbanist development that works for the neighborhood, Monte Anderson had initially intended to add small, residential units in the parking lot. These would be 200-300 square foot micro-units, at a price that the neighborhood could sustain.

Previous
Previous

Wheatland Plaza

Next
Next

Greenleaf Roommate House